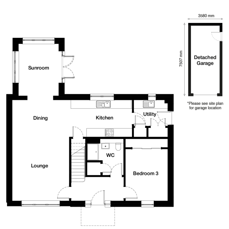
The home starts with a hallway as you enter the front door. From here, you can access the downstairs bedroom, a handy shower room, and of course, the main living area. This space contains the lounge, dining room and kitchen - all in an open plan layout.
The kitchen is kitted out with all integrated appliances, including your oven, hob, microwave, dishwasher and washing machine. There is a utility room off the kitchen, with access to the rear of the home. The back garden is also accessible through patio doors in the dining room.
Upstairs, you'll find two large bedrooms, both with fitted wardrobes, and a large bathroom with bathtub and a separate shower. The upstairs landing makes a spacious feature area, and there is a large storage cupboard opposite the bathroom, perfect for tucking away towels and bedding.
Floor plans
Ground floor
 
| Room | Metric | Imperial | 
|---|---|---|
| Lounge | 4099 x 4435 mm | 13' 1'' x 14' 5'' | 
| Dining | 4109 x 2660 mm | 13' 4'' x 8' 5'' | 
| Kitchen | 4305 x 2600 mm | 14' 1'' x 8' 5'' | 
| WC | 2553 x 2552 mm | 8' 3'' x 8' 3'' | 
| Bedroom 3 | 2972 x 3650 mm | 9' 9'' x 12' 0'' | 
| Sunroom | 2819 x 3662 mm | 9' 3'' x 12' 0'' | 
First floor
 
| Room | Metric | Imperial | 
|---|---|---|
| Bedroom 1 | 4010 x 4729 mm | 13' 1'' x 15' 5'' | 
| Bedroom 2 | 3045 x 4729 mm | 9' 9'' x 15' 5'' | 
| Bathroom | 2500 x 3068 mm | 8' 2'' x 10' 0" | 
View on development plan
It's Included
A new house that's a home from day one. From the lawn in your garden to a kitchen complete with integrated appliances, your Springfield home includes a high specification.
- Choice of worktops, cabinets, doors and handles
- Single fan assisted oven
- Induction hob
- Cooker hood
- Integrated microwave
- Integrated fridge freezer
- Integrated dishwasher
- LED chrome downlights
Family bathroom
- Modern bathroom ware
- Modular vanity unit
- Full height tiling around bath and half height on other walls
- Shower over bath
- Glass shower screen and enclosure
- Heated towel warmer
- Shaver socket
- LED chrome downlights
- Fitted mirror
WC
- Modern bathroom ware
- Half height tiling to all walls
- Heated towel warmer
- LED chrome downlights
- Fitted mirror
- Fitted wardrobes in bedrooms
- Chrome sockets & switches on the ground floor
- SKY and BT points in the lounge
- TV point in all bedrooms
- USB socket in lounge, kitchen and bedroom 1
- Glazed door to public rooms
- White internal doors
- Chrome door handles
- Choice of paint colours for each room (no feature walls)
- Satin finish to woodwork
- Cabling for future electric car charging point
- Block paved driveway
- Turf to front and rear garden
- 1.8m screen fence to rear garden
- 1.8m gate
- External tap at rear
- External light at front and rear of home
- Rotary clothes dryer
Get in touch
 
Karen Stewart
Sales Consultant
Selling from our South Glassgreen sales office, 2 Beaufort Gate, Elgin, IV30 8BL
Friday to Monday, 12 noon - 5pm
Appointments preferred. Please use our online calendar to book your visit.
Directions to South Glassgreen: Access from new junction on A941 Rothes Road.
Please note: All images, development plans and floor plans are for illustrative purposes only and measurements are intended as a guide. Offers and incentives are plot specific and development specific and may be amended or withdrawn at anytime. We make no guarantees about the tenure of any homes sold on each development and they are subject to change without consultation. Please speak to your Development Consultant if you require any further information.
 


